Введение
В современном мире наблюдается неуклонный рост числа городских агломераций, сопровождающийся интенсивным развитием их инфраструктурных комплексов [1]. Данный процесс приводит к увеличению числа архитектурных объектов, общественных пространств и транспортных узлов, что существенно усложняет пространственную организацию городских территорий [2; 3]. В этих условиях актуализируется проблема обеспечения высокой степени конкретности и полноты информационной базы, касающейся объектов недвижимости [4; 5].
Одним из инновационных решений, направленных на улучшение визуализации и анализа пространственных характеристик объектов недвижимости, является внедрение технологий трехмерного (3D) моделирования [6]. Применение данного метода позволит не только представить объекты в их реальном пространственном контексте, но и детализировать такие параметры, как объем, пространственное положение, взаимное перекрытие контуров и другие геометрические характеристики [7].
Целью данного исследования является применение передовых технологий 3D-сканирования для создания детальной цифровой модели первого этажа торгово-развлекательного центра «Красная площадь», расположенного в городе Краснодар.
Материалы и методы исследования
Объектом исследования является торгово-развлекательный центр «Красная Площадь» в городе Краснодар Краснодарского края, представляющий собой комплексный объект многофункционального назначения, интегрирующий в себе элементы коммерческой и развлекательной инфраструктуры. Торгово-развлекательный центр (ТРЦ) расположен в Прикубанском округе города Краснодара, в микрорайоне Жукова (ЭНКА), на одной из ключевых транспортных артерий города – Ростовском шоссе.
Результаты исследования и их обсуждение
«Красная Площадь» в Краснодаре – это один из крупнейших в Южном федеральном округе торгово-развлекательных центров (ТРЦ) европейского формата. Он является первым и самым крупным объектом сети холдинга «РАМО-М» на Кубани, открытым в 2003 году. В нем расположены более 500 магазинов, кинотеатр, боулинг, фуд-корт, кафе, рестораны, детские площадки и т.д. Состоит из двух корпусов: один со стороны улицы Дзержинского с кадастровым номером 23:43:0128002:365 и другой со стороны Александра Покрышкина с кадастровым номером 23:43:0128002:213.
К основным характеристикам здания отнесена общая площадь ТРЦ, составляющая 61 895,30 м2, из которой:
– площадь торгового назначения – 46 583,23 м2;
– площадь общего назначения – 8 730,54 м2;
– площадь складских, инженерных помещений – 3 258,68 м2.
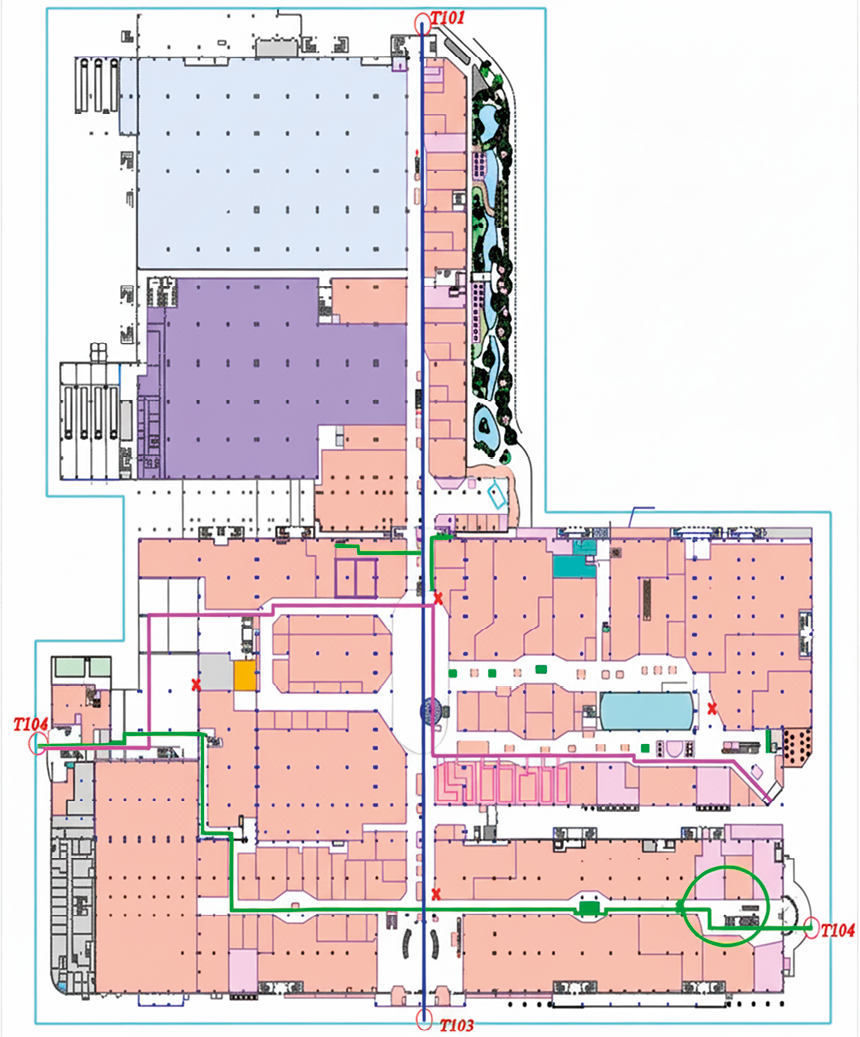
На рисунке 1 изображен план 1-го этажа ТРЦ «Красная Площадь» в г. Краснодаре.
Сложные архитектурные формы зданий создают значительные сложности при их контроле, особенно в контексте кадастрового учета и градостроительного планирования [8]. Проблема заключается в необходимости точного определения геометрических параметров и пространственного положения таких объектов для их корректного отображения в реестрах и на картах [9; 10]. В современном градостроительстве всё чаще применяются здания с различной архитектурой, что приводит к естественной проблеме их учета как объектов недвижимости. Для реализации поставленных задач на исследуемом объекте был выбран инновационный метод, относящийся к области геопространственных данных и лазерной локализации [11]. Данный подход позволяет создавать высокоточные пространственные модели объектов, что является достаточно важным фактором для эффективного анализа и интерпретации географических характеристик исследуемой территории [12].
Для корректной эксплуатации необходимо осуществить определение координат двух точек, расположенных на противоположных сторонах здания, с целью их последующей пространственной привязки (рис. 2).
Данный подход обеспечивает высокую точность и надежность функционирования системы, что является достаточно важным для достижения поставленных технических и эксплуатационных целей [13]. Для проведения съемки торгово-развлекательного комплекса «Красная Площадь» в городе Краснодар была применена инновационная разработка, созданная коллективом кафедры геодезии Кубанского государственного аграрного университета имени И.Т. Трубилина [14] (рис. 3).
Изобретение относится к сфере вычислительной техники, используемой в процессе геодезических измерений, и предназначено для создания пространственных моделей помещений. Это устройство применимо в области сбора и обработки геопространственных данных и использует методы лазерного сканирования для определения пространственных характеристик окружающей среды. Особое внимание уделяется интеграции фото- и видеофиксации, что существенно оптимизирует процесс обработки данных (рис. 4).

Рис. 1. План 1-го этажа ТРЦ «Красная площадь» Примечание: составлено авторами по результатам данного исследования
Лазерные сканеры, испуская луч, отражающийся от окружающих объектов, формируют облако точек с пространственными координатами. В блоке объединения данных облако точек накладывается на фотографии, синхронизируется и сохраняется на запоминающем устройстве. Полученное облако точек отображается на мониторе оператора в реальном времени, позволяя его просматривать, вращать и проводить измерения [15].
В таблице 1 представлена скорость и время прохождение изобретения по каждому маршруту.

Рис. 2. Принцип 3D-моделирования объекта Примечание: составлено авторами по результатам данного исследования

Рис. 3. Изобретение для 3D-моделирования Примечание: составлено авторами по результатам данного исследования

Рис. 4. Схема взаимодействия основных элементов Примечание: составлено авторами по результатам данного исследования
Таблица 1
Скорость и время прохождения каждого маршрута
|
Наименование маршрута |
Длина маршрута, м |
Скорость движения, км/ч |
Время прохождения, мин. |
|
Внешний маршрут |
1 378 |
4 |
20 |
|
1-й маршрут |
316 |
3 |
30 |
|
2-й маршрут |
401 |
3 |
40 |
|
3-й маршрут |
389 |
3 |
40 |
Примечание: составлено авторами по результатам данного исследования.

Рис. 5. Схема внутренних и внешних маршрутов изобретения Примечание: составлено авторами по результатам данного исследования

Рис. 6. Примерные маршруты в магазинах ТРЦ «Красная площадь» Примечание: составлено авторами по результатам данного исследования
Проведя сравнительный анализ четырех альтернативных маршрутов, можно сделать вывод о том, что внешний маршрут характеризуется наибольшей протяженностью. Однако, принимая во внимание тот факт, что скорость функционирования устройства в данном контексте превышает аналогичные показатели для внутренних маршрутов, можно предположить, что время, необходимое для прохождения внешнего маршрута, будет минимизировано. Этот вывод основывается на предположении о прямой корреляции между скоростью устройства и временными затратами на выполнение задачи. Внутренние маршруты отличаются примерно одинаковой протяжённостью, что упрощает обработку данных. На рисунке 5 показана схема внутренних и внешних маршрутов изобретения. Примерные маршруты в магазинах ТРЦ «Красная площадь» показаны на рисунке 6.
В результате сканирования внутренних и внешних конструктивных элементов торгово-развлекательного центра «Красная площадь» в городе Краснодар с применением методов лазерного сканирования было получено облако точек, представляющее собой высокоточные данные о геометрии исследуемых объектов. Эти данные могут быть обработаны с использованием специализированного программного обеспечения для трехмерного моделирования. В частности, посредством любого современного 3D-редактора, обладающего необходимыми функциональными возможностями, облако точек может быть трансформировано в завершенную трехмерную модель помещения.
В ходе выполнения исследования была получена 3D-модель 1-го этажа торгового центра «Красная площадь». На объекте был реализован комплекс мероприятий, охватывающих все аспекты, необходимые для проведения работ. Все организационные вопросы, связанные с деятельностью на объекте, подвергались тщательному согласованию с эксплуатирующими организациями. Проведение работ осуществлялось исключительно в присутствии представителей данных организаций и при наличии соответствующих разрешений, что обеспечивало соответствие нормативным требованиям и стандартам безопасности.
Согласно Приказу Минстроя России от 30.06.2022 г. № 221/пр «Об утверждении Методики определения нормативных затрат на информационное моделирование с учетом использования технологий лазерного сканирования и фотограмметрии» в таблице 2 представлена смета на выполнение проектно-изыскательских работ.
В ходе расчетов установлено, что итоговая стоимость на работы по выполнению инженерно-геодезических изысканий с применением изобретения составила 574 564,40 руб.
Таблица 2
Смета на выполнение проектно-изыскательских работ
|
№ |
Показатели |
Показатель |
Расчет, руб. |
|
1 |
Создание съемочной геодезической сети методом спутниковых геодезических определений пункт 38 таблица 2.1 |
1 категория 3948,55*1,54 = 6 136,21 |
6 136,21 |
|
2 |
Съемка искусственных сооружений методом НЛС плотностью точек лазерных отражений не менее 1000 точек на 1 кв. м пункт 47 таблица 2.7 |
1 км = 32 288,79 6,5 км 6,5*32 288,79 = 209 877,13 209 877,13*1,54 = 323 210,79 |
323 210,79 |
|
3 |
Подготовка технического задания на выполнение съемочных работ пункт 52 таблица 3.1 |
8 989,96*1,54 = 13 844,54 |
13 844,54 |
|
4 |
Подготовка программы на выполнение съемочных работ пункт 53 таблица 3.2 |
47 053,83*1,54 = 72 462,90 |
72 462,90 |
|
5 |
Обработка результатов измерений, выполненных при создании съемочной геодезической сети методом спутниковых геодезических определений пункт 57 таблица 3.5 |
5 пунктов 5*418,72 = 2 092,1 2 092,1*1,54 = 3 223,37 |
3 223,37 |
|
6 |
Камеральная обработка материалов топографической съемки линейного объекта методом МЛС протяженностью от 5 до 10 км включительно пункт 61 таблица 3,7 |
18 633,30*1,54 = 28 695,28 |
28 695,28 |
|
7 |
Подготовка технического отчета на выполнение съемочных работ на территории площадью до 50 га включительно пункт 66 таблица 3.11 |
20 279,60*1,54 = 31 230,58 |
31 230,58 |
|
8 |
Итого |
478 803,67 |
|
|
9 |
НДС 20% |
95 760,73 |
|
|
1 |
ВСЕГО |
574 564,40 |
|
Примечание: составлено авторами по результатам данного исследования.
Заключение
В рамках данной работы было проведено исследование по автоматизированной комплексной съемке объекта с использованием современных лазерных сканеров, что позволило получить высокоточные данные о геометрии и структуре помещений. Полученные результаты были интегрированы в специализированное программное обеспечение для построения трехмерной модели, обеспечивающей высокую степень детализации и визуализации архитектурных особенностей здания. В ходе исследования выявлено, что предлагаемое техническое решение сочетает в себе преимущества лазерного сканирования и обладает рядом функциональных преимуществ, что делает его особенно актуальным для широкого спектра задач:
– во-первых, позволяет создавать высокоточные 3D-модели сложных архитектурных сооружений, обеспечивая детальное представление их пространственной структуры;
– во-вторых, открывает новые возможности для проведения изысканий в сложных или опасных для человека условиях, минимизируя риски для исследователя и повышая эффективность выполнения работ;
– в-третьих, значительно сокращает время, необходимое для проведения геодезических и картографических исследований, что способствует повышению производительности и снижению затрат на выполнение подобных задач.
Конфликт интересов
Библиографическая ссылка
Солодунов А.А. ORCID ID 0000-0001-6609-9398, Пшидаток С.К. ORCID ID 0000-0001-8514-8677, Шичиях З.З. СОЗДАНИЕ 3D-МОДЕЛИ ОБЪЕКТА КАПИТАЛЬНОГО СТРОИТЕЛЬСТВА НА ПРИМЕРЕ ТОРГОВО-РАЗВЛЕКАТЕЛЬНОГО ЦЕНТРА «КРАСНАЯ ПЛОЩАДЬ» В Г. КРАСНОДАР // Успехи современного естествознания. 2025. № 11. С. 94-101;URL: https://natural-sciences.ru/ru/article/view?id=38457 (дата обращения: 10.12.2025).
DOI: https://doi.org/10.17513/use.38457



